MAXI

Максимум комфорта для всей семьи

Версия «Standard»

Классическая версия проекта с высотой потолка 250 см на первом этаже и высотой аттиковой стены 57 см
Сравнение аттиковых стен домов серии Берген / sravnenie attikovyh sten domov serii bergen

Технические характеристики

Дом MAXI — это оптимальное решение для загородной жизни.

Это просторный и красивый двухэтажный дом. В нем присутствуют все элементы премиум-недвижимости: второй свет (отсутствует перекрытие между первым и вторым этажом, что делает пространство в гостиной просторным и наполненным светом), панорамное остекление, строительные материалы премиум-класса.

Внешние стороны дома 9,7 х 12,5 метров, а его площадь равна 205 м2, так что он идеально подойдет для семьи до 6 человек.

Высота 1 этажа равна 2,5 метра, высота 2 этажа достигает 3,5 метра (от лаг пола до стропильной ноги), аттиковая стена равна 57 см (самое низкое место 2 этажа). Для тех, кто любит еще больший комфорт, существует версия «UP», в котором возможно увеличить высоту 1 этажа до 2,8 метра, а высоту аттиковой стены до 135 см.
7
205
2
комнат
кв.м.
этажа
205 м
Общая площадь дома без террасы и закрытым вторым светом
Общая площадь дома без террасы и с открытым вторым светом
247 м
Общая площадь дома с террасой и с закрытым вторым светом
57 см
Высота аттиковых стен
(от лаг пола)
188 м
6,65 м
Общая высота дома (от низа обвязочного бруса до верха стропил в коньке)
2
2
2

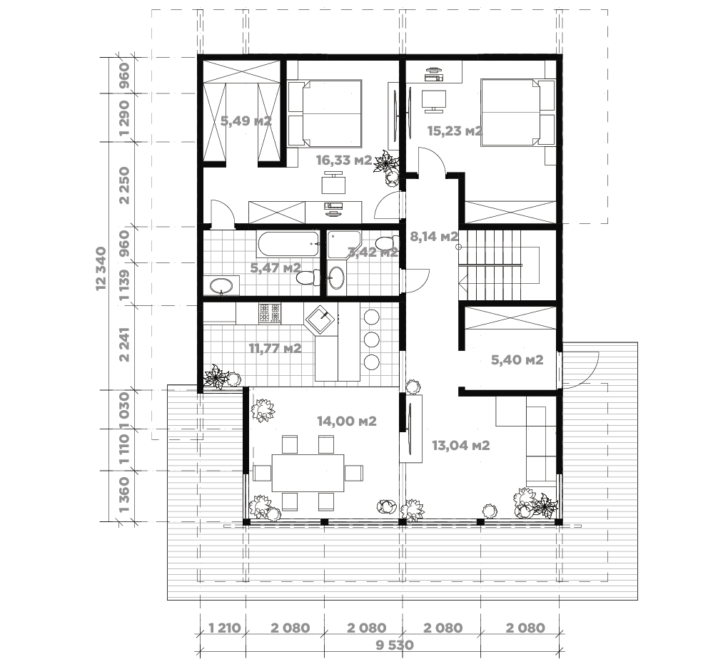
Вариант планировки

Планировка в наших домах свободная, и вы сможете реализовать любые свои идеи

110 м

Площадь 1 этажа

78 м

Площадь 2 этажа
2
2

Фасады

Рассмотрите дом со всех сторон, чтобы увидеть его во всей красоте

Разрезы

Исследуйте каждую деталь как на ладони

Нравится дом MAXI?

Мы отправим ссылку на коммерческое предложение за 3 минуты по SMS

Галерея дома MAXI

Домокомплект
5 231 000 ₽
Состав:

Утеплитель PIR
Опорно-балочная система из клееного бруса
«Умный» стеклопакет
Монтажный комплект
Комплект документации
Базовая комплектация
Входит:

Домокомплект MAXI
Фундамент: забивные сваи Москва и область
Доставка, разгрузка
Сборка домокомплекта MAXI (1 кукушка) (зима)
7 440 000 ₽
Дом с внешней отделкой
10 499 000 ₽
Входит:

Домокомплект MAXI
Фундамент: Ж/Б сваи
Доставка, разгрузка: Москва и область
Сборка домокомплекта
Отделка кровли — металлочерепица
Огнебиозащита
Окна ПВХ
Подшив свесов кровли — сосна, сорт СВ
Пластиковая водосточная система в сером цвете
Отделка стен — декоративная силиконовая штукатурка
Покраска каркаса снаружи в светлые тона
Отделка террасы ДПК
Технический надзор на всем этапе возведения дома
Базовая Плюс
8 491 000 ₽
Входит:

Домокомплект MAXI
Фундамент (Москва и МО): геологические изыскания, забивные сваи
Доставка, разгрузка: Москва и область
Сборка
Кровля: металочерепица (RAL 7024), водосточная система
Терраса: покрытие ДПК
Дом с внешней и внутренней отделкой
Стоимость рассчитывается индивидуально
Внешняя отделка:

Домокомплект MAXI
Фундамент: Ж/Б сваи
Доставка, разгрузка: Москва и область
Сборка домокомплекта
Отделка кровли — металлочерепица
Огнебиозащита
Окна ПВХ
Подшив свесов кровли — сосна, сорт СВ
Пластиковая водосточная система в сером цвете
Отделка стен — декоративная силиконовая штукатурка
Покраска каркаса снаружи в светлые тона
Отделка террасы ДПК
Технический надзор на всем этапе возведения дома
Внутренняя отделка:

Стяжка пола на первом этаже
Прокладка коммуникаций и системы вентиляции
Укладку безвредной кварц-виниловой
Установка теневых плинтусов
Монтаж и отделка лестницы
Установка перегородок
Штукатурка стен
Керамогранитная плитка в мокрых зонах
Натяжные потолки
Укладка пола и покрытия на втором этаже