X100




Элегантный одноэтажный дом в стиле минимализм

Технические характеристики

Одноэтажный дом Х100 из новой линейки компании Фахверк Домогацкого – это не только превосходное качество, но и великолепный дизайн. Минималистичный стиль этого проекта сочетает в себе лаконичность архитектурных форм и строгий силуэт фасада.

Серия Х подойдет самому требовательному заказчику, который хочет в оптимальные сроки возвести надежный и экологичный загородный дом. Дом, где будет не только много света и пространства, но и высокий уровень комфорта, соответствующий статусу премиального жилья.

Х100 отличается превосходными эксплуатационными характеристиками: высокой энергоэффективностью от класса А до А++ (благодаря современному композитному утеплителю); двухкамерными стеклопакетами Guardian Glass, отлично зарекомендовавшими себя в фахверковых домах EcoComplect; плоской неэксплуатируемой кровлей с мягким покрытием Технониколь.

Проект дома создан на основе газобетонных блоков по немецкой технологии ЮТОНГ (YTONG) и сборно-монолитных железобетонных конструкций.

Современные европейские газобетонные блоки имеют высокую пожаропрочность и морозостокость и способны сохранять свои качественные показатели более ста лет. Кроме того, за счет дополнительного армирования проект имеет усиленную конструкцию, отвечающую за высокую сейсмоустойчивость.

Дом X100 предполагает стильную внешнюю отделку декоративной штукатуркой и металлическими ламелями с цветным покрытием. Дом может быть выполнен в белой или антрацитовой цветовой гамме.

Дополнительно возможно выбрать такие опции, как внешняя отделка, размещение дома на участке, цветное напыление стекол, индивидуализация планировки и увеличение или добавление дополнительной террасы. Гарантия на дом до 25 лет.
3
100
1
комнаты
кв.м.
этажа
100 м
Площадь теплого контура
Общая высота дома
121 м
Общая площадь с террасой
3,58 м
2
2

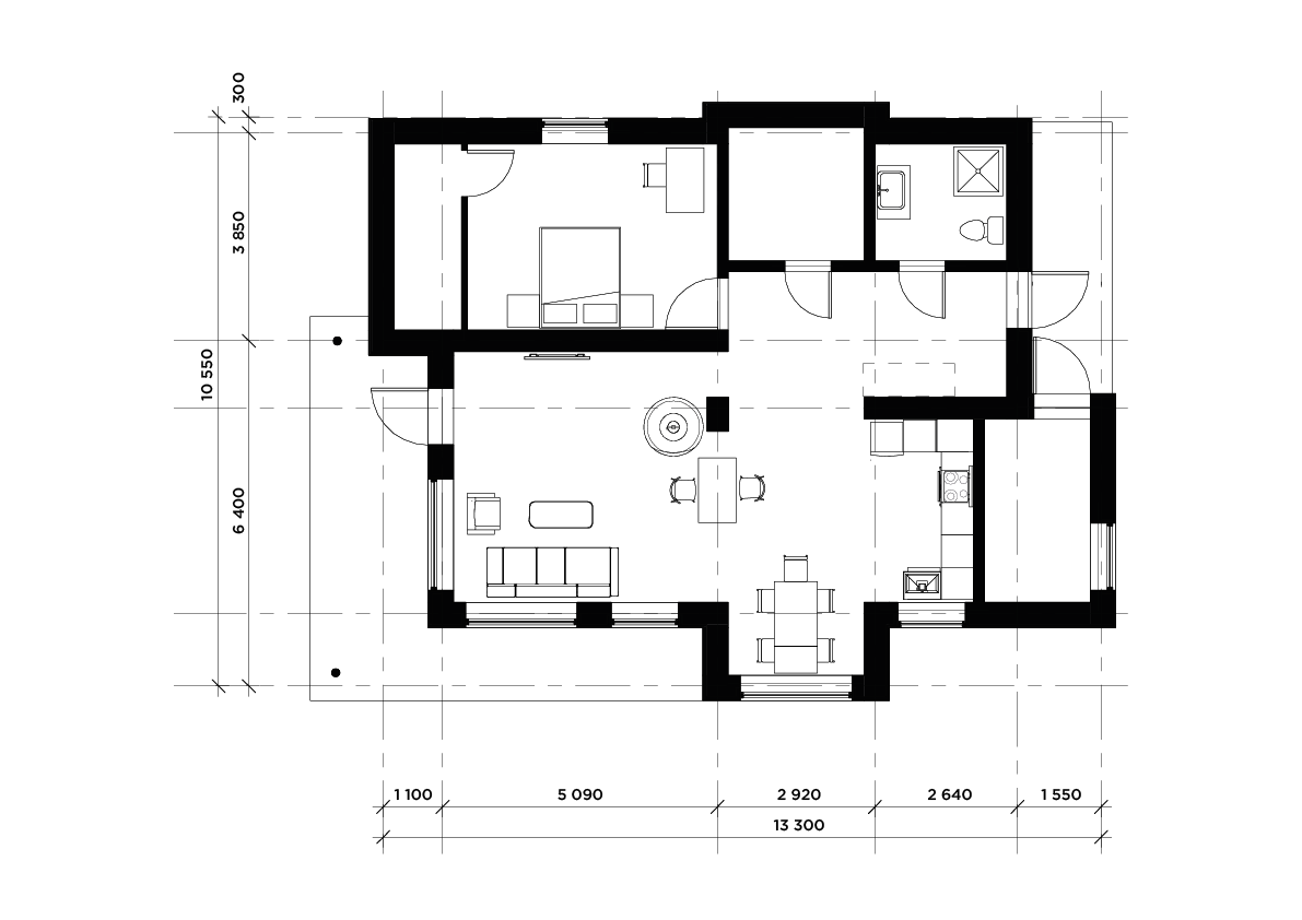
Вариант планировки

Планировка в наших домах свободная, и вы сможете реализовать любые свои идеи

100 м

Площадь 1 этажа

121 м

Общая площадь с террасой
2
2

Фасады

Рассмотрите дом со всех сторон, чтобы увидеть его во всей красоте

Галерея дома X100

Цена домокомплекта

Стоимость теплого контура со сборкой и доставкой по Москве и Московской области.*

Внешняя отделка не входит в стоимость и будет рассчитываться нашими менеджерами отдельно.

от 6 021 000 ₽

*Стоимость и возможность доставки в другие регионы уточняйте у менеджера 8 (495) 191-49-21