BARN

Современный дом с европейскими корнями

Технические характеристики

Дом BARN— это европейский дом для современной семьи. Барнхаус воплощает комбинацию трех самых популярных направлений в дизайне: лофт, минимализм и био-тек.

Внешние стороны дома 7,7 x 12,1 метров, а его площадь равна 135 м2, так что он идеально подойдет для большой семьи до 5 человек.

Просторный и красивый дом со вторым светом. На втором этаже возможно сделать еще одну спальную комнату или кабинет. В доме присутствуют все элементы премиум-недвижимости: второй свет (отсутствует перекрытие между первым и вторым этажом, что делает пространство в гостиной просторным и наполненным светом), панорамное остекление, строительные материалы премиум-класса.

Высота 1 этажа равна 3 метра, высота 2 этажа достигает 3,3 метра (под коньком), аттиковая стена равна 90 см (самое низкое место 2 этажа).
5
135
2
комнат
кв.м.
этажа
135 м
Общая площадь дома без террасы и закрытым вторым светом
Общая площадь дома без террасы и с открытым вторым светом
147 м
Общая площадь дома с террасой и с закрытым вторым светом
90 см
Высота аттиковых стен
(от лаг пола)
115 м
7,35 м
Общая высота дома (от низа обвязочного бруса до верха стропил в коньке)
2
2
2

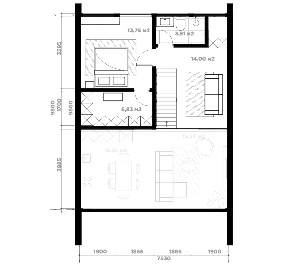
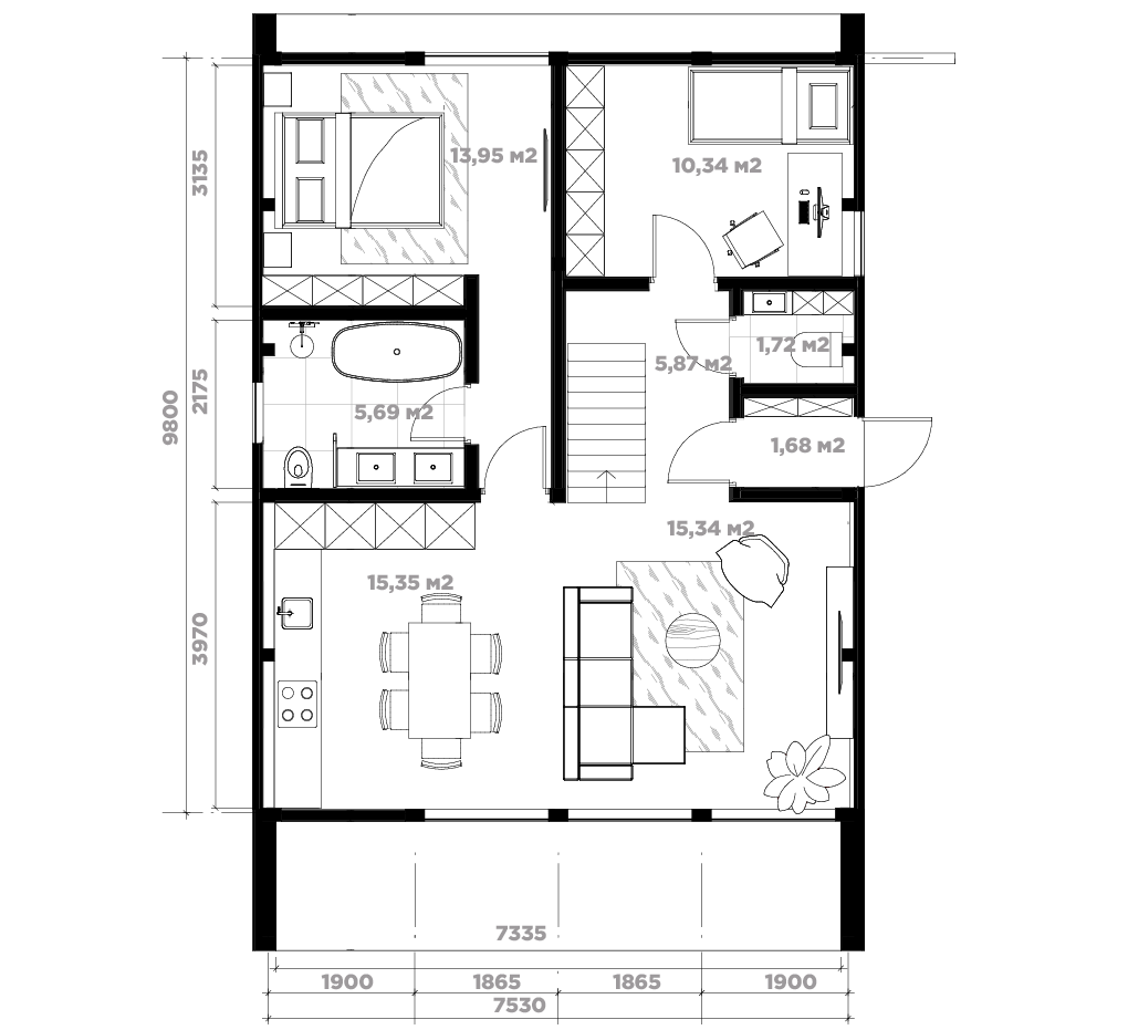
Вариант планировки

Планировка в наших домах свободная и вы сможете реализовать любые свои идеи

74 м

Площадь 1 этажа

41 м

Площадь 2 этажа
2
2

Фасады

Рассмотрите дом со всех сторон, чтобы увидеть его во всей красоте

Разрезы

Исследуйте каждую деталь как на ладони

Нравится дом BARN?

Мы отправим ссылку на коммерческое предложение за 3 минуты по SMS

Галерея дома BARN

Домокомплект
4 658 000 ₽
Состав:

Утеплитель PIR
Опорно-балочная система из клееного бруса
«Умный» стеклопакет
Монтажный комплект
Комплект документации
Базовая комплектация
Входит:

Домокомплект BARN
Фундамент: забивные сваи Москва и область
Доставка, разгрузка
Сборка домокомплекта BARN
6 745 000 ₽
Дом с внешней отделкой
9 927 000 ₽
Входит:

Домокомплект BARN
Фундамент: Ж/Б сваи
Доставка, разгрузка: Москва и область
Сборка домокомплекта
Отделка кровли — металлочерепица
Огнебиозащита
Окна ПВХ
Подшив свесов кровли — сосна, сорт СВ
Пластиковая водосточная система в сером цвете
Отделка стен — декоративная силиконовая штукатурка
Покраска каркаса снаружи в светлые тона
Отделка террасы ДПК
Технический надзор на всем этапе возведения дома
Базовая Плюс
8 758 000 ₽
Входит:

Домокомплект BARN
Фундамент (Москва и МО): геологические изыскания, забивные сваи
Доставка, разгрузка: Москва и область
Сборка
Кровля: фальц (RAL 7024), водосточная система
Терраса: покрытие ДПК
Дом с внешней и внутренней отделкой
Стоимость рассчитывается индивидуально
Внешняя отделка:

Домокомплект BARN
Фундамент: Ж/Б сваи
Доставка, разгрузка: Москва и область
Сборка домокомплекта
Отделка кровли — металлочерепица
Огнебиозащита
Окна ПВХ
Подшив свесов кровли — сосна, сорт СВ
Пластиковая водосточная система в сером цвете
Отделка стен — декоративная силиконовая штукатурка
Покраска каркаса снаружи в светлые тона
Отделка террасы ДПК
Технический надзор на всем этапе возведения дома
Внутренняя отделка:

Стяжка пола на первом этаже
Прокладка коммуникаций и системы вентиляции
Укладку безвредной кварц-виниловой
Установка теневых плинтусов
Монтаж и отделка лестницы
Установка перегородок
Штукатурка стен
Керамогранитная плитка в мокрых зонах
Натяжные потолки
Укладка пола и покрытия на втором этаже